










Réservoirs de force AVENTOS HKi encastré
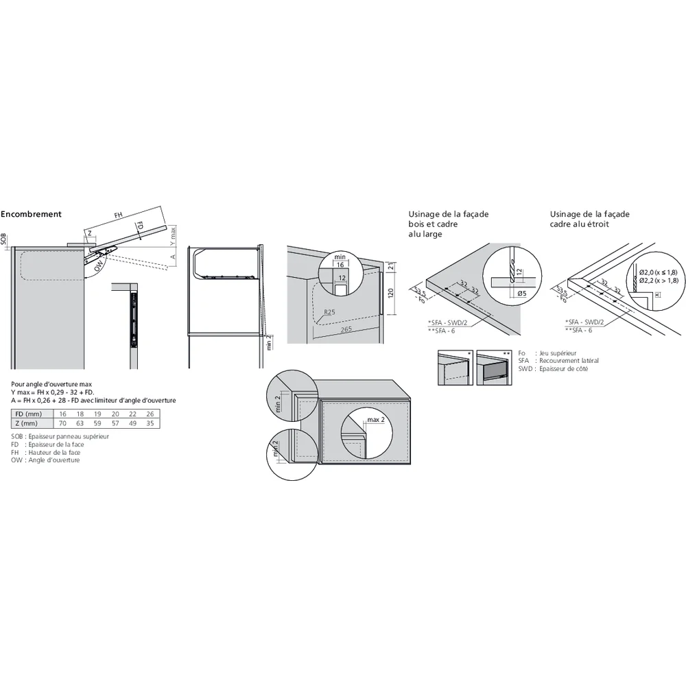
Angle d'ouverture 107°.
Limiteur d'angle d'ouverture intégré.
Epaisseur de panneau (mm) : 16 - 25.
Hauteur du corps de meuble (mm) : 162 - 600.
Largeur du corps de meuble maxi (mm) : 1800.
Documents techniques
Pour connaître nos prix et acheter le produit, identifiez-vous !
Je m'identifieDescription
Set composé de 2 réservoirs de force symétriques à encastrer.
Angle d'ouverture 107°.
Limiteur d'angle d'ouverture intégré.
Epaisseur de panneau (mm) : 16 - 25.
Hauteur du corps de meuble (mm) : 162 - 600.
Largeur du corps de meuble maxi (mm) : 1800.
Toutes les références
Réf. | Puissance (FP) |
---|---|
AVE7423 | 420-1610 |
AVE7425 | 930-2800 |
AVE7427 | 1730-5200 |
AVE7428 | 2600-7800 |
